PLATZ FÜR IHRE ZWEISAMKEIT: 2-ZIMMER-WOHNUNG MIT BALKON
Exklusiv




- Objektart
- Wohnung
- Objekttyp
- Etagenwohnung
- Vermarktungsart
- Kauf
- PLZ
- 21244
- Ort
- Buchholz in der Nordheide
- ImmoNr
- 5533
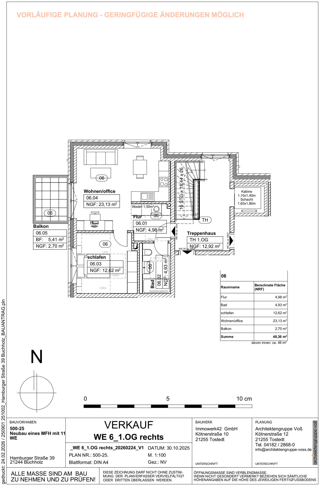
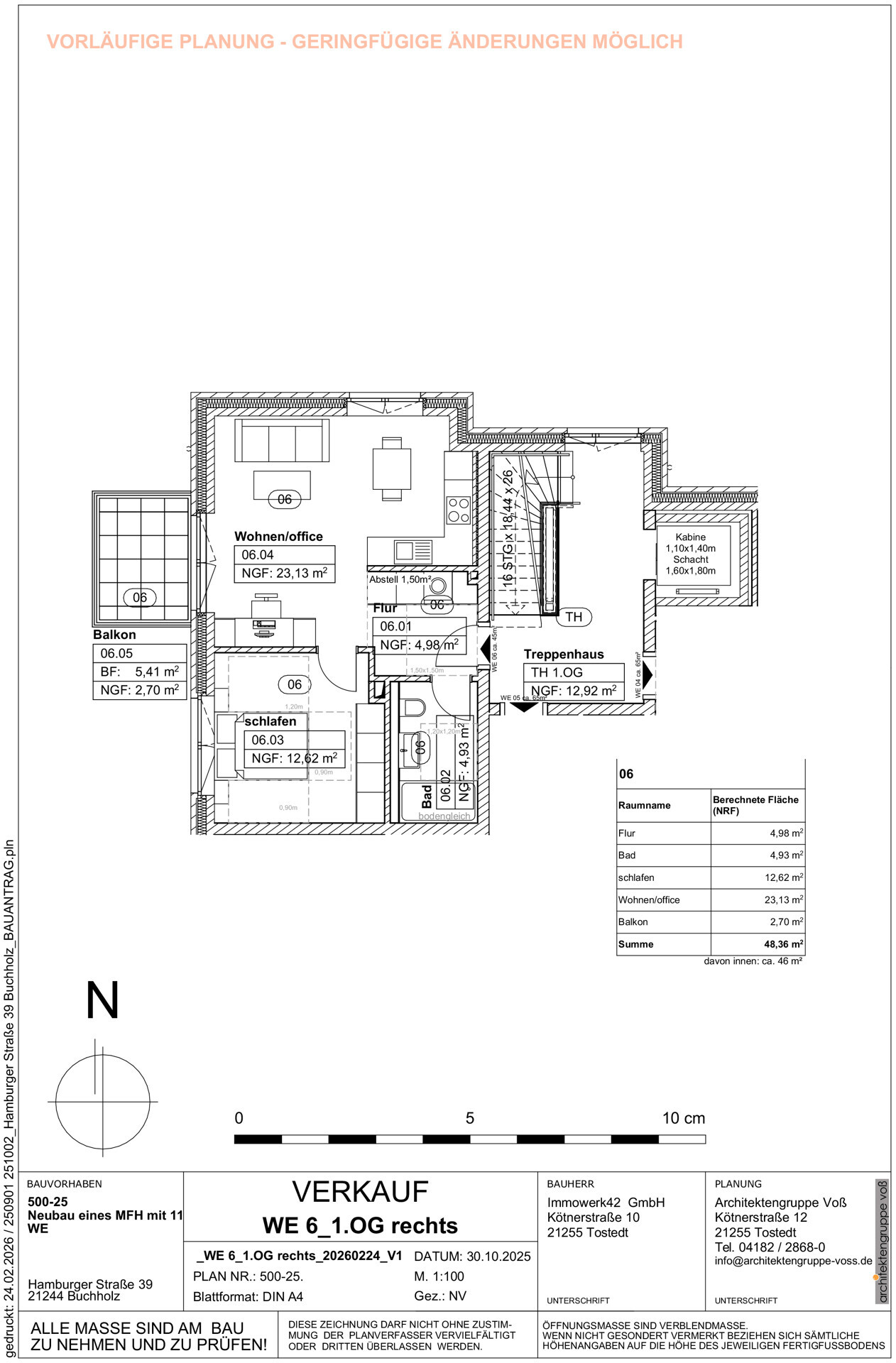
- Wohnfläche
- ca. 48 m²
- Nutzfläche
- ca. 12 m²
- Anzahl Zimmer
- 2
- Anzahl Badezimmer
- 1
- Kaufpreis
- 288.000,00 €
- Baujahr
- 2026
Beschreibung
NORDHEIDE LIVING – MODERNES WOHNGLÜCK IN BESTLAGEBei der Konzeption von NORDHEIDE LIVING stand eine klare Vision im Fokus: perfekter Wohnkomfort durch moderne Architektur und hochwertige Ausstattung.
✅ Provisionsfrei: Erwerb direkt vom Bauträger ohne zusätzliche Vermittlungsgebühren.
✅ Ausführliche persönliche Beratung zu Grundrissen und Ausstattungsvarianten.
PLATZ FÜR IHRE ZWEISAMKEIT: 2-ZIMMER-WOHNUNG MIT BALKON
Diese barrierefreie Eigentumswohnung im 1. Obergeschoss bietet auf ca. 48,36 m² ein exklusives Wohnerlebnis bei NORDHEIDE LIVING. Die Kombination aus zeitlos eleganter Architektur und der zentralen, naturnahen Lage erfüllt höchste Ansprüche.
• Wohnen & Essen: Charmant geplanter, offener Bereich mit direktem Zugang zum privaten Balkon.
• Außenbereich: Balkon in West-Ausrichtung – der ideale Ort für gemeinsame Abendstunden und viel Sonne.
• Schlafen & Bad: Traumhaftes Schlafzimmer mit direkt danebenliegendem, modernem Duschbad.
• Lage: Erstklassige Anbindung – die Buchholzer Innenstadt ist bequem fußläufig erreichbar.
DAS GESAMTPROJEKT: NORDHEIDE LIVING
Das Architektenhaus umfasst 11 edle Eigentumswohnungen, die durch durchdachte Grundrisse für Singles, Familien und Kapitalanleger gleichermaßen attraktiv sind.
DIE AUSSTATTUNGS-HIGHLIGHTS:
• Architektur: Moderne Fassade mit großzügigen Fensterfronten für lichtdurchflutete Räume.
• Komfort: Barrierefreier Zugang bis ins Dachgeschoss dank modernem Fahrstuhl.
• Energie: Nachhaltige Luft-Wasser-Wärmepumpe, Photovoltaikanlage und ein Belüftungssystem für minimale Energiekosten.
• Badezimmer: Design-Bäder mit großformatigen Fliesen, ebenerdigen Duschen und deutscher Marken-Sanitärkeramik.
• Wohnklima: Hochwertiger Designbelag und individuell regulierbare Fußbodenheizung.
• Stauraum: Abstellräume in der Wohnung sowie zusätzliche Kellerräume.
• Außenanlagen: Gestaltete Grünflächen, 3 Carports und 8 Stellplätze.
Lage
DIE LAGE: NORDHEIDE LIVING IN BUCHHOLZBuchholz – Das charmante Tor zur Hansestadt Hamburg
Nordheide Living entsteht in einer der begehrtesten Wohnlagen von Buchholz: ruhig, zentral und eingebettet in eine gewachsene, niveauvolle Nachbarschaft. Hier genießen Sie die perfekte Symbiose aus kleinstädtischem Charme und der direkten Nähe zur Metropole Hamburg.
LEBENSQUALITÄT DIREKT VOR DER HAUSTÜR:
• Natur & Freizeit: Die Stadt ist umgeben von reizvollen Landschaften, die zu ausgiebigen Wanderungen, Radtouren oder zum Reiten einladen. Sportbegeisterte finden im örtlichen Hallen- und Freibad sowie auf dem nahegelegenen Golfplatz in herrlicher Kulisse den idealen Ausgleich.
• Urbaner Flair: Stolze Eichen und Buchen prägen das Stadtbild und verleihen der Innenstadt ihren ganz eigenen Charakter. Die einladende Fußgängerzone sowie das moderne Einkaufszentrum bieten vielfältige Möglichkeiten für einen entspannten Stadtbummel.
• Kultur & Kulinarik: Buchholz überzeugt als lebendige Kulturstadt. Ob Theateraufführungen, Konzerte, Kinoabende oder kulinarische Highlights in zahlreichen Restaurants – hier kommt jeder auf seine Kosten.
PERFEKTE ANBINDUNG:
Trotz der idyllischen Lage ist die Hamburger Innenstadt nur einen „Katzensprung“ entfernt. Dank der hervorragenden Anbindung erreichen Sie die City mit dem PKW oder den öffentlichen Verkehrsmitteln bequem in ca. 20 Minuten.
Nordheide Living – Wohnen, wo andere Urlaub machen, ohne auf die Vorzüge der Großstadt zu verzichten.
Ausstattung
DIE AUSSTATTUNG: PERFEKTION BIS INS DETAILDie Liebe zum Detail, die die Architektur von Nordheide Living auszeichnet, setzt sich konsequent im Innenausbau fort. Wir verwenden solide, zeitgemäße Materialien und schaffen in allen Räumen ein Ambiente von zeitloser Eleganz. Hochwertige Badarmaturen namhafter Hersteller sowie eine flexible Gestaltung der Bodenbeläge in den Wohnbereichen gehören bei uns zum gehobenen Standard.
FREUEN SIE SICH AUF EXKLUSIVE DETAILS:
• Architektur & Design: Innovative, klare Formsprache mit durchdachten Raumzuschnitten für jede Lebensphase.
• Licht & Sicherheit: Große, dreifachverglaste Fensterfronten (teils bodentief) mit Einbruchschutzbeschlägen für maximale Helligkeit bei sicherem Wohngefühl.
• Wohlfühlklima: Individuell regulierbare Fußbodenheizung in Kombination mit modernen Design-Bodenbelägen.
• Sanitärkomfort: Stilvolle Bäder mit weißen Marken-Sanitärobjekten und hochwertigen Malerarbeiten.
• Nachhaltige Technik: Zukunftsweisendes Energiekonzept gemäß aktuellem GEG-Standard. Die Beheizung erfolgt über eine hocheffiziente Luft-Wasser-Wärmepumpe in Kombination mit einer Photovoltaikanlage zur Eigenstromnutzung sowie einer kontrollierten Lüftungsanlage mit Wärmerückgewinnung.
• Smart Living: In jeder Wohnung wird ein Medien-Sicherungskasten installiert – diskreter Platz für Router sowie Internet- und Fernsehanschlüsse.
• Barrierefreiheit & Komfort: Moderner Fahrstuhl vom Keller bis ins Dachgeschoss sowie ein repräsentatives, gefliestes Treppenhaus.
• Außenanlagen & Ambiente: Liebevoll gestaltete Gartenflächen und ein einladendes Entrée mit beleuchteten Klingelschildern. Die Erdgeschosswohnungen verfügen zudem über eigene Privatgärten mit großzügigen Terrassen, die für eine freundliche Atmosphäre und höchste Lebensqualität sorgen.
• Stauraum & Parken: Vollkeller mit privaten Abstellräumen sowie 8 Außenstellplätze und 3 Carports.
Sonstige Angaben
ARCHITEKTENHAUS "NORDHEIDE LIVING"Neuer Wohnraum ist hier gefragt. Umso mehr freuen wir uns, Ihnen das Neubauprojekt „NORDHEIDE LIVING“ anbieten zu können. Elf edle Wohneinheiten mit modernen Grundrissen hat das "Architektenbüro Voß“ mit viel Liebe zum Detail geplant.
ERDGESCHOSS (mit Terrasse & Privatgarten)
• Whg 1 (links): 3 Zimmer, ca. 75,48 m², Keller, Stellplatz 30. | 440.000 €
• Whg 2 (mitte): 2 Zimmer, ca. 78,56 m², Keller, Stellplatz 20. | 456.500 €
• Whg 3 (rechts): 2 Zimmer, ca. 54,04 m², Keller, Barrierefreier Parkplatz | 320.000 €
1. OBERGESCHOSS (mit Balkon & Keller)
• Whg 4 (links): 3 Zimmer, ca. 67,54 m². | 390.000 €
• Whg 5 (mitte): 2 Zimmer, ca. 65,66 m². | 385.000 €
• Whg 6 (rechts): 2 Zimmer, ca. 48,36 m². | 288.000 €
2. OBERGESCHOSS (mit Balkon & Keller)
• Whg 7 (links): 3 Zimmer, ca. 67,54 m². | 390.000 €
• Whg 8 (mitte): 2 Zimmer, ca. 65,64 m². | 385.000 €
• Whg 9 (rechts): 2 Zimmer, ca. 48,34 m². | 288.000 €
STAFFEL- / PENTHOUSEWOHNUNGEN (3. OG mit Dachterrasse & Keller)
• Whg 10 (links): 3 Zimmer, ca. 73,09 m². | 446.500 €
• Whg 11 (rechts): 2 Zimmer, ca. 52,12 m². | 316.500 €
Zusatzkosten Stellplätze:
• PKW-Stellplatz: je 10.000 €
• Carportplatz (alternativ): 18.500 €
KONTAKT & PROJEKTLEITUNG:
immowerk42 GmbH | Architektengruppe Voß
Kötnerstraße 10, 21255 Tostedt
Tel: 04182 / 2868 18 oder 04182 / 2868 19
E-Mail: kontakt@immowerk42.de
Haben Sie Fragen zur Ausstattung oder Finanzierung? Wir nehmen uns Zeit für Sie. Vereinbaren Sie jetzt Ihr individuelles Beratungsgespräch. Gut zu wissen: Sie kaufen direkt vom Bauträger und sparen sich die Maklerprovision.
Gerne senden wir Ihnen detaillierte Unterlagen und die Baubeschreibung zu oder vereinbaren einen persönlichen Beratungstermin.
Hinweis: Makleranfragen sind nicht erwünscht.